The perimeter is the total length of all sides of a shape. This page will explain the formulas needed to work out the perimeter of squares, rectangles and circles, which are the most likely to come up in your studies. We will also look at how to combine formulas for composite shapes. Finding the perimeter is useful for many reasons. Some include:
putting up a fence
measuring a window frame
designing a garden bed
deciding if you have enough space to store something.
Can you think of any other reasons?
This page will help you to:
calculate the perimeter of a square or rectangle
calculate the circumference ( perimeter) of a circle or semi-circle
calculate the perimeter of composite shapes.
Rectangles and squares
This section will show you how to work out the perimeter of a square or rectangle.
The formula
To work out the perimeter of a rectangle or square, you need this formula:
(height/length x 2) + (width x 2)
This formula will only work if the shape has either 4 equal sides or 2 sets of equal sides.
Watch
Watch the video to learn how to work out the perimeter of a square or rectangle. After you watch, try the activities below to practise.
Some people find it easier to add all sides of the shape together. This skill will be particularly useful when it comes to finding the perimeter of irregular shapes. You will practice this further down the page.
Using the formula
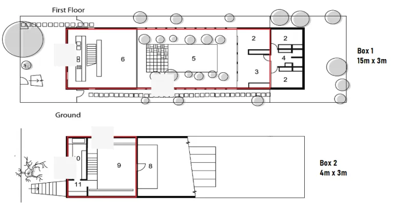
Let's begin by looking at a plan for a house.
You want to calculate how much skirting board you need for some rooms in a house. Both rooms are highlighted by a red border.
To decide how much skirting board you need, you must work out the sum of the perimeters of these shapes. Remember that you are calculating your answer in metres. Try working out the answer before checking on the cards below.
The more you practise, the easier these questions become.
Circles
This section will show you how to work out the perimeter of a circle, also known as the circumference.
The formula
This section will show you how to work out the circumference (or perimeter) of a circle or semi-circle (a half circle).
π is pi. Pi is a number we use for calculations with circles. It has many decimal places, but we often round it off to three places, which is 3.142.
- The circumference of a circle = π x diameter
- The perimeter of a semi-circle = the circumference ÷ 2 plus the diameter.
Watch the video in the next section. It explains this further.
Watch
This video below explains how to find the circumference of a circle using either the radius or diameter. It also explains how to find the circumference of a semi-circle.
What do you remember?
Using the formula
Read the problem on the slide and try to work out the answer. Move to the next slide when you are ready to check your thinking.
Other shapes
This section will show you how to work out the perimeter of a range of other shapes.
Identifying shapes
You might have to work out the perimeter of a shape that is not regular because it is a combination of different shapes.
Look at the shapes below. Think about how you might break them down into smaller shapes. Then, click on the hot spots to check your answers.
Using the formulas
Working with irregular shapes means that we need to break them down into smaller shapes and work with more than one formula.
Look at the image of this window.
- What are the two shapes we are working with?
- What formulas should you use?
Click on the hotspots to check your answers.
Applying your learning
This section gives your more practice using the formulas.
Regular shapes
Try to work out the perimeter for these examples.
Some questions require you to convert from mm to m. Remember, if you need a refresher on how to do this you can go to our converting measurements page.
Now, try this exercise focusing on circles.
Irregular shapes
Now practise working out the perimeter of these shapes.
We value your opinion. Please click on the button to share your feedback on these materials. |
Did you know CDU Language and Learning Advisors offer a range of study support options?
https://www.cdu.edu.au/library/language-and-learning-support

